
![]()
-言 语-
streamer
平静的事物,往往蕴藏着巨大的力量
耐得住时光的流逝,也不会轻易过时
……

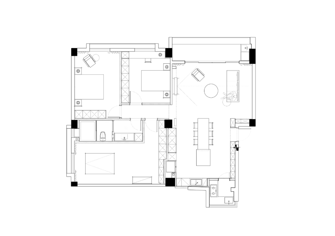
↑ 平面设计图
作品名称:归素
户型面积:180㎡
装修风格:工业极简
全案高定:BORLON柏林世家


宽敞的客厅
电视柜与沙发一字形排开
落地灯为过渡界限
达成更和谐的视觉感
Harmonious
……



电视背景墙设置陈列柜
缓冲了上下紧凑关系
疏密有致的比例拿捏
大处写格局
细节生质感
Well-stacked
……


用浓厚的黑色去连接不同灰度的软装
映衬背景墙与茶几,两两结合家居温馨韵味油然而生
Warmth
……

空间内部的设计与摆放对称有致
干净的纯白色简单构建
空间的气质轮廓显现
Outline
……

天花两边压低提供了空间的背景作用
内部陈设的风姿在此展现
独特的表达让空间多变
唤起无限想象力
Demeanor
……

橱柜内暖色灯带让大面积白色不再冰冷
不同材质的玻璃柜门有序收纳
也不会感到单调或乏味
Orderly
……


干练的厨房最好的体现方式就是干净
截然不同的暗色表达
充斥着一片安然
轻弗灰和极品哑光白相衬
空间的独特美感彰显菲尔特的特有韵味
Peaceful
……

卧室空间的设计语言延续低调
谱写着安定沉稳的气质格调
Low-key
……

自然光透过白色纱帘洒进空间
落地窗打通室内布陈
与户外景致的视觉联结
床头小夜灯温暖添饰
一切显得温馨而静雅
Visual connection
……

很多时候会发现生活不需要太多的言语
家亦是如此
![]()
在习以为常的深色表达中
用不同寻常的比例和细节
勾勒出从“神”到“形”统一的美感
提交失败
提交成功