
白云大道白云堡地段依山望湖而建,环境优美,正因为位置的优越,因此在设计方案上我们也预留出几处阳台,开阔的视野,让一家人在家便能欣赏到自然的风景。
屋主张先生作为一个干练的事业型的自己,不仅对自己的要求很高,而且在设计上也很有自己独到的想法。在本次的项目中,他都有跟进。
在设计上也有根据他的想法做的改进,满足自己的个性化需求,达到最满意的效果。

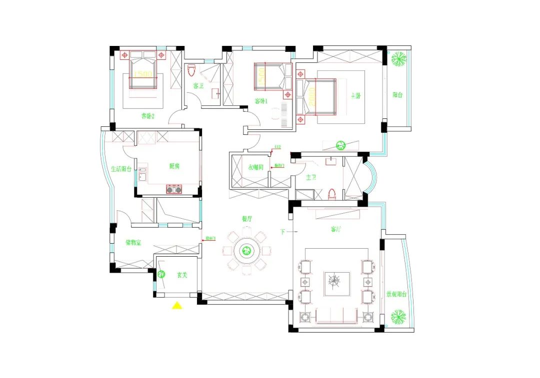
项目名称:广州市白云区白云大道白云堡— 项目面积:170㎡— 项目总监:郑姣— 主笔设计:李堂弟
本案整体设计风格“含蓄,现代,简约”,在空间里没有过多琐碎的设计,用去繁从简的手法来体现精巧、精致,在解决屋主的功能需求的同时,更重要的是满足视觉感受。


01
意蕴,渐渐发散
开阔舒朗的空间格局给人以豁然开朗的感觉,
一入室内,灰白淡雅色调奠定空间的主基调,
带来整体的高级与时尚感。
玻璃、岩板、大理石在同一空间交错穿插,
丰富的质感使空间更加饱满,
也带来了视觉上的美感与身心的极致体验。



入口墙面用大理石铺陈,
石材的流动肌理与空间气息相融相依,
引领屋主进入到一个别样的空间。
同时入户有一道墙的阻隔,
保证了空间的私密性,天花板上吊灯的设计,
在光影的氛围中体验舒适的居家生活。


到顶的玄关柜把顶面和地面连接起来,
在视野上拉高了层高,两盏射灯的光晕映在柜体上,
温暖的光晕使归家之人得到放松。


02
收纳,彰显精致生活
柜体中间专门用来做开放格,
可以用来随手放置钥匙包包等物件,
精巧的设计也让繁忙的生活变得更为舒心。
一旁的黑色透明玻璃柜让人心生别致,
把屋主的臻藏放置其中,生活的仪式感就此铺展开来,
内里灯光与材质的相互搭配,
打造出功能性与美学性的质感之地。


修长的储物柜慢慢往上延展,
无限拉长延伸视觉,没有过多的修饰,
仅用纯粹的色调勾勒出立面空间,
整个柜体关上时,平整如一,
物品收纳也让整体更为整洁和干净。


03
精练,打造烹饪乐趣
厨房空间连接露台,更多自然光的引入,
室内也变得明媚了起来。
较大的烹饪区让屋主有足够的空间施展厨艺,
做饭也成了一大乐趣,清洗区靠近门窗,
空气的流通也让这一地更为干爽。

斯蒂兰卡-卡其灰的橱柜有序而排,
打开时拥有多样的储存空间,
关上时一整面就似一面墙。
上下各设柜体,满足屋主不同的储物需求,
这样隐藏式的设计,
也让整体空间的布局更加舒适。


厨房墙面延用大理石元素,与客厅形成和谐互动,
硬朗的石材以其纹理带来质感美,
流淌出自然安宁的气息。
石材易清洗耐磨的优异性能可以很好的适应厨房环境,
并作为一大亮点给烹饪空间带来光亮感,
开放格的设置,可以放置家用小电器等在此煲汤,
香气慢慢飘散,
美好生活的图景徐徐展开。
每个人对家的想象各有不同,
自在、舒适、惬意或者温馨,
每一种不同的尝试,
都是为了找到人与空间的契合与共鸣,
让新旧时光在空间里交替,
让居者可以放松沉浸于此。
提交失败
提交成功