
项目名称:广州珠江帝景鸣泉大宅
项目面积:220㎡/A/B户型
项目总监:陈总 蒲月
主笔设计:李堂弟

业主说:和BORLON这次的合作非常的愉快,从项目开始之前,就与设计师进行了一次深入的交流。
在交谈过程中,我们对于设计的想法碰撞出了不同的火花,后期的沟通也非常顺畅。
设计师认真负责,还有几次不厌其烦地跑到施工现场对我所提出的问题也依依都有回应,这样的装修服务让我非常喜欢,给我带来了一次不一样的体验。
----------------------------------------------------------
在风格上,A套型追求现代简约风,主要想让老两口住的比较舒服,过过喝喝茶的安闲日子;
B套型更为个性,把儿子的奇思妙想融入进去,两户距离不远,也是为了可以多陪陪父母,照顾他们。


虽然只是一次偶然的机会,但没想到最后的结果出乎意料的好,一切都那么自然,慢慢成型,最后完美落地。
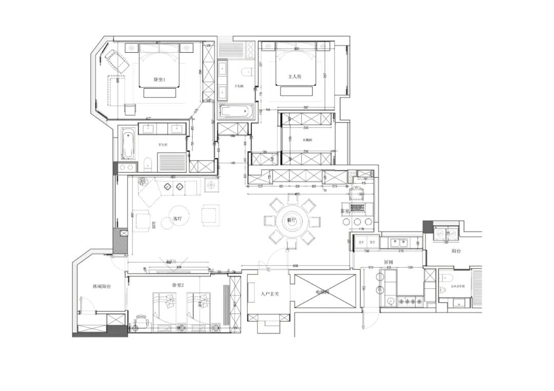
A座/
现代雅居之地——
目之所及尽显纯净质朴,
电视背景墙由整面石材打造而成,
富有张力带来视觉的冲击力。
飘逸四散的纹理随意延伸,
看似没有章法却蕴含着自然规律,
谱写着自然的奥义。

深灰沙发占据一地,时尚高级感扑面而来,
射灯让光影投在护墙上,提亮空间的同时,
也让F4星云影橡木的纹理更为清晰。

温馨与深沉——
Kronospan克诺斯邦浅枫木柜体满足了较大的储物功能,
连接了地面和顶面,拉高视野,
黑色透明玻璃柜和中间开放格的结合,
增添通透感,使人看起来更加豁然、开朗。

圆形餐桌让一家人可以团圆在此,一起聚餐,
享受食物的美好。
窗边增设品茗区,暗沉的色彩给这一方之地带来宁静深沉之感,坐在此处听风喝茶,感受悠悠时光从身边滑过。

干净而亮洁——
厨房加入大理石元素,与客厅形成和谐互动,
云石炫影橱柜有序而排,物品收纳使厨房更加干净整洁。
清洗区位于窗户下方,以便通风空气流通,
冰箱内嵌于柜体,节省空间。


精致场所的宁静之感——
衣帽间柜门高耸到顶,黑色狭长拉手增加精致,
与之相对的黑色透明玻璃衣柜直达到顶,
入眼即是通透,线性灯的设计,让内里空间清晰明了。


舒适休憩场景——
主卧空间的素雅格调,提升屋主生活品质。
木质地板铺陈,走入其中,安逸舒畅的感觉从心而生。
柜体板材与整体相为统一,使整体调性一致,
玻璃窗连通窗外风景,
夜幕降临,眺望远处,灯火辉煌。


简练的朴素气质——
次卧空间打造简约气质,
舒适的床铺与同色系的床头柜巧妙搭配,左右呼应。
背景墙运用格栅板元素,凹凸不平中趣味丛生。


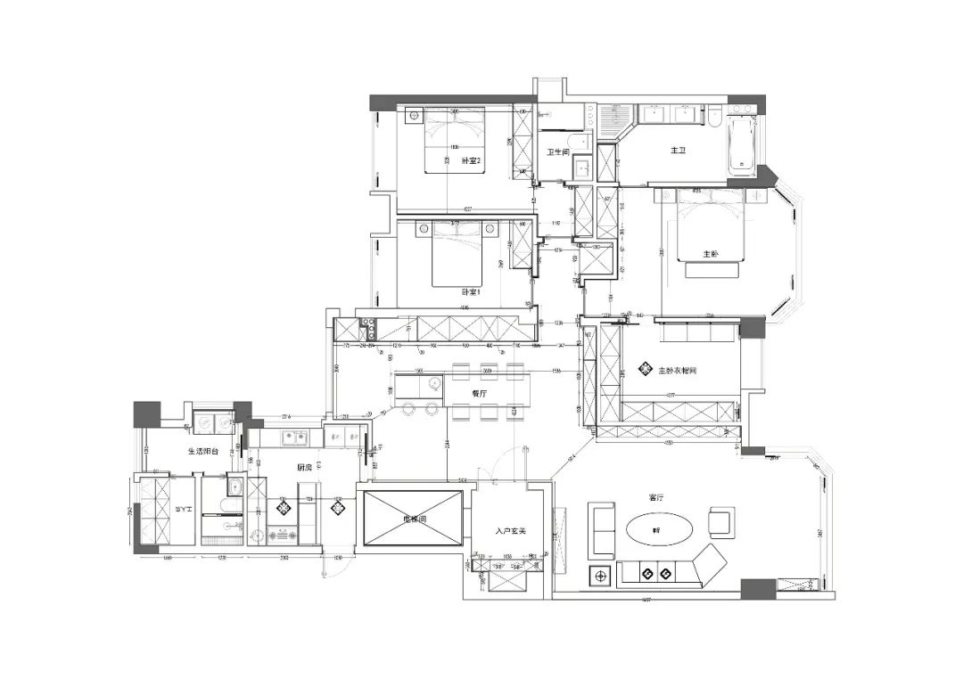
B座/
日常生活的趣味——
通透的客厅空间给人以充分的想象,
柜体中间内嵌电视,
使位于中间的黑色电视更为突出。
PET斯蒂兰卡-卡其灰的隐藏式储物柜,
让整个墙面整洁纯净,
一盏吊灯照亮一角空间,亮泽金属更为透亮明晰。


多盏射灯投射到电视柜上,暖黄光晕增加空间温度,
白色布艺沙发以柔曲之姿,
给一天劳累的人带来放松惬意。
精选圆形矮脚茶几,灰色条纹座椅,
让空间充盈,减少局促感,
躺在沙发观影,视线刚刚好。

人间烟火之地——
白色大理石以其独特的肌理,穿插于厨房之中,
带来洁净清爽之感,岛台连接着桌面,
烹饪用餐两不耽误。
黑色透明玻璃柜隐藏光源,从细微中照亮所需之物。


暖色调灯光照亮厨房空间,
温暖的光晕给家带来了温馨感,
一碗面,一锅粥,日常平凡的生活也有着无比的幸福。

舒畅与亮丽——
棕色木质地板形成视觉吸引,在色彩反差中,
感受到屋主对生活的独特追求。
一门到顶的衣柜设计,给了屋主有更多的空间放置衣物。


呈曲线形的落地窗给了卧室宽敞之感,
轻薄的白色纱帘随风摇曳,静谧悠然的日常,
滋养每一个热爱生活的你。
空间的沉稳气息——
推门入内,走廊式的过道让你更有向里探索的欲望,
一旁的玻璃陈列柜内里穿插金属,
带来质感和格调的升级。
也可放置各色摆件,打造成独属屋主的艺术空间。


卫浴系统多运用石材结构,
以其优异的性能占据一席之地,
较大的镜子在视觉上拉大空间面积,
一天下来,冲刷掉满身的疲惫。

墙面由黑灰石材铺陈,各种线条随意散开,
像一整块艺术画布置于眼前。
衣帽间柜体有藏有露,两种不同的组合搭配各有感觉。

设计起于空间,
最终是为了达到人与空间的共情,
回归人本身,极尽探索,
用人性化的设计,
打造宏观与微观的简练场景,
探寻生活的真谛与哲学。
提交失败
提交成功