
白云区同和香柏广场处于广州中轴线上,地段价值优越,其所在的广州大道北板块坐拥白云山与南湖双重生态资源。
对于家的期盼,户主刘先生希望能在家里找到一个最舒服的位置坐下来,下班回家大可以手倦抛书,无事慵懒。
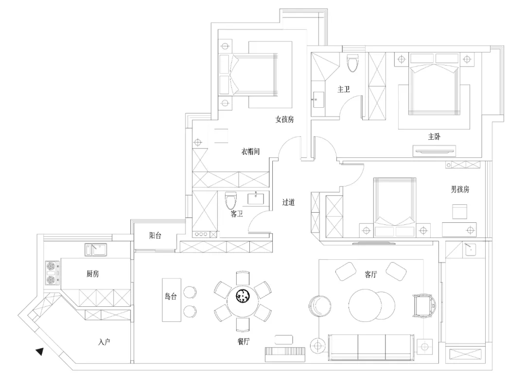
设计师根据户主的生活习惯进行设计,考量每一个细节都拥有空间逻辑的依托,都经过了理性目光的深刻洞察。本次案例,带你一起感受有态度有品位的写意空间。

设计师以简洁的设计手法
实现客户入室先见美的美好期许
柔和的灯光将这份温情延续在家的角角落落
光影就像变换空间的魔术
创造出区别于室外的另一种世界


. ENTRYWAY .
柜体立面简洁通透
充分利用墙面空间
设计师在这设置了上下储物柜
大大方便屋主出入时的使用需求

. GRILLE PLATE .
BORLON格栅板使空间富有理性又充盈着艺术气息
在其上最醒目的装饰
莫过于极简线条灯
彼此共生又相互独立
稍不经意间
打造了光与艺术的写意空间

. FRESH LIFE .
客厅是家的一个小剧场
在大面积玻璃窗的加持下
室内的通透感大大提升
置入丰富鲜活的生活场景
情感与情绪
融汇到空间氛围缓缓流淌
让屋主沉浸窝在沙发上与朋友们娓娓道来的画面

. SOFT LIFE .
大理石的天然纹理如水墨画般
气势恢宏地在墙面上肆意泼洒
成为客厅独特的风景
这种意境营造的设计手法
自然而高级
仿佛置身海边
弹奏着一曲永不结束的乐章

. TV WALL .
电视内嵌于卡其色背景墙
以清新的色调与简洁的线条
让空间整体明了开阔
也符合屋主安闲舒适的生活方式与独具慧眼的审美

. KITCHEN .
厨房作为我们一日三餐的烹饪之地
U型设计因实用的特点被屋主青睐
将备餐、烹饪、清洗、收纳等功能
整合在同一空间中
方便将餐具厨具等
大小物件都归置起来
在多功能化的同时
不放过每一个细节
加以橱柜的深浅搭配
使屋主倾心于其时尚前卫的颜值魅力

打开金色烤漆玻璃柜门
拿出珍藏在内的名酒
摆上蜡烛
与情投意合的伴侣
品味浪漫醇香

. BEDROOM .
万般色彩中
选中热情满满的爱马仕橙
作为卧室背景
被点亮的不止是情感丰富的空间
更是升华了视觉的温度
静卧时分享受漫长的夜晚
听窗外微风带来城市的声音

床头柜上方精致的金属挂灯提升了主卧整体时髦感,倾泻了一室的温暖明亮

浴室采用现代干湿分离设计
玻璃推拉门使厕所与浴室既有界限又相互沟通
华彩金浴室柜内嵌LED照明
增强了内部玻璃搁板的美观性
·
家的模样是没有标准答案的申论题,不管是空间结构上的设计处理,
还是装饰细节上的精致手法,BORLON在每一处细节中都考虑了人性化的设计,
彰显屋主的生活品味,感知空间所赋予的美,读懂屋主的心之所向。
提交失败
提交成功